Casa Parter si Etaj
Overview
| Nr. Proiect: | #01 |
|---|---|
| Suprafata: | 325m2 |
| Tip: | Proiecte Case cu Etaj |
| Inaltime: | P+1E |
| Nr. Băi: | 4 |
| Nr. Camere: | 6 |
| Pret Proiect: | 1,650 € |
| Rating: |
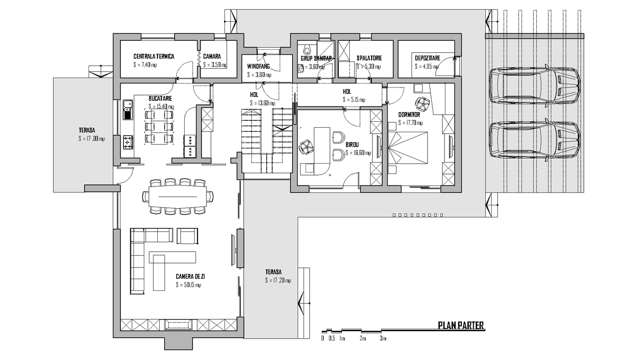
Acest proiect se remarca printr-o arhitectura inovativa, care reda intr-un mod concret simplitatea si perfectiunea unei constructii de acest tip. Acest proiect de casa va ofera o suprafata totala desfasurata de 325 de MP si o suprafata construita la sol de aproximativ 187 de MP. Urmarind aceste coordonate, veti remarca cu siguranta faptul ca acest tip de locuinta este unul incapator si extrem de bine segmentat, intreaga arhitectura fiind una aerisita si nonconformista in acelasi timp.
Proiectul dispune de un parter segmentat intr-un living incapator, de peste 50 de MP, o bucatarie in stil american de aproximativ 15 MP dar si de 2 camere care pot fi folosite drept dormitoare sau chiar birouri. Tot la parter regasim camere de mici dimensiuni care pot fi folosite drept spatii de depozitare, spatiu pentru centrala termica sau chiar pentru baie sau spalatorie. Totodata, proiectul ne ofera doua terase de peste 17 MP fiecare si holuri extrem extrem de incapatoare, cu acces spre etaj.
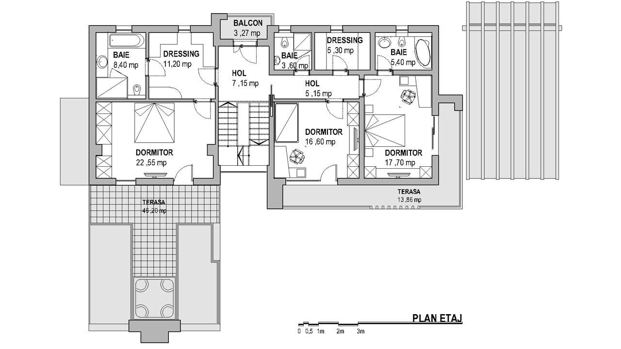
Etajul este alcatuit din 2 terase, una de peste 45 de MP si o alta terasa ceva mai restransa, de aproximativ 13 MP dar si din 3 dormitoare decomandate, fiecare dintre acestea avand acces catre o baie proprie. Totodata, la nivelul etajului, avem parte de 2 incaperi pe care le puteti folosii ca si dressing-uri dar si de un balcon la capatului holului.